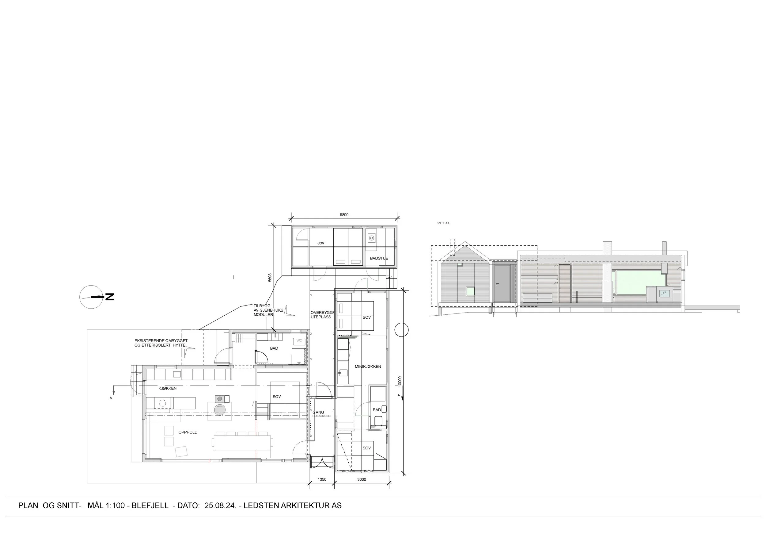
Rehabilitering/ombygging/tillbygg: Blefjell familiehytte
ARBEIDSOMFANG: Totalrehabilitering av tradisjonell fjellhytte på Blefjell fra 1959. Tilbygg på hytta i 2022 satt sammen av brukte enheter, anneks og minihytte
ADRESSE: Blefjell, Buskerud/Telemark
FERDIGSTILT: ombygging 2008/ tilbygg 2024
AREAL: 62 m2 / tilbygg 45 m2
MATERIALBRUK/MILJØ: Gjenbruk av eksisterende hytte. Himling og gulv gjenbrukt,  panel inne og planløsning endret. Gjenbruk av løs møblering, sofa og stoler. Boffi-kjøkken kjøpt brukt. Gjenbruk av brukt anneks og minihytte transportert fra vestlandet og tilpasset på stedet. 
PROSJEKTLEDER LA: Ellen Ledsten, ARK/ IARK 
ENTREPRENØR/BYGGHERRE: Larsson bygg og maskin (0mbyggingen)/Hytteeier 
BRUKER: Privat
Oppriss av ny situasjon vist med minihytte og anneks satt sammen med eksisterende tidligere ombygget hytte.
I en liten eksisterende bod, er det satt inn et stort gjenbruksvindu, enkelt trevirke av gran er pusset til benker og guilvtemmer, og en herlig vedovn er kommet på plass.
Minihytte og anneks løftes på plass ved siden av den eksisterende rehabiliterte 50- talls hytta. Tynne presise betongsøyler stod klare til å ta imot elementene.
Første byggetrinn utført i 2008, ny panel, ny drager, og nye vindusåpninger men eksisterende himling og gulv. Selv den gamle sofas gjør nytten sin videre ikledd et nytt trekk.
Tegninger etter første ombygging
Prosess - før og underveis
 
        
        
      
           
        
        
      
           
        
        
      
           
        
        
      
           
        
        
      
           
        
        
      
     
                
               
             
             
             
             
             
             
             
             
             
             
             
                 
                 
                 
                 
                 
                 
                 
                 
                 
                 
                 
                 
                 
                